Kontakt
Kapitalanlage > Villa
Zu Verkaufen

Alpine Exklusivität im toskanischen Stil – Wohnen am Wilden Kaiser

6351 Scheffau am Wilden Kaiser
2.990.000 €

Immobilien-ID
5390/1038
Zimmer
7,5
Fläche
348 m²
Baujahr
2005

Eckdaten

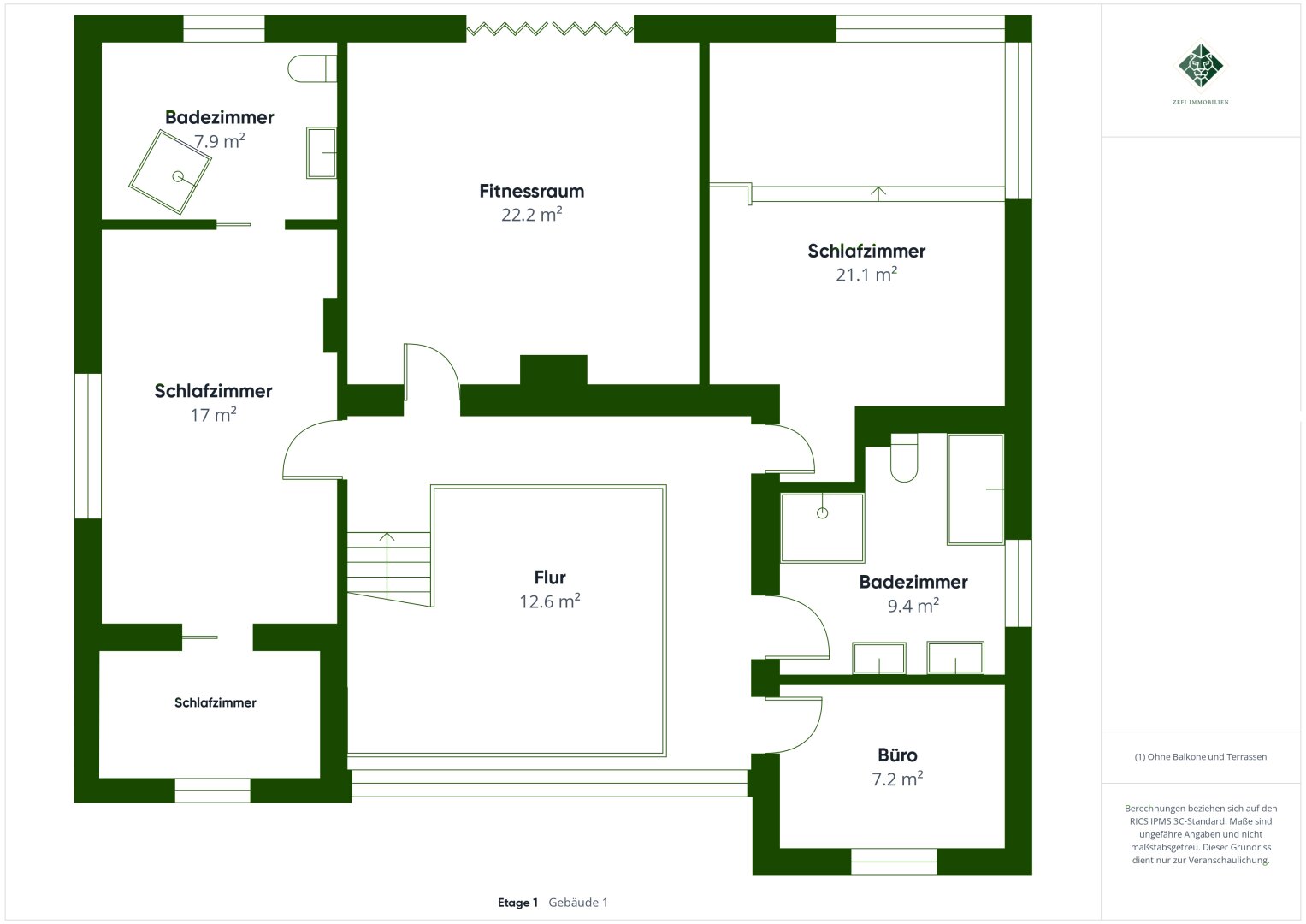
  • Wohnfläche: 347,53 m²
  • Grundstücksfläche: 1.029 m²
  • Nutzfläche: 491,41 m²
  • Lagerfläche: 56,23 m²
  • Kellerfläche: 91,31 m²
  • Zimmer insgesamt: 7,5
  • Badezimmer: 3
  • Separate WCs: 3
  • Etagen: 3
  • Räume veränderbar: ja
  • Stellplätze: 3
  • Außenstellplätze: 3
  • Garagenstellplätze: 2
  • Terrassen: 1
  • Balkon-/Terrassenfläche: 100,68 m²

Zustand

  • Baujahr: 2005
  • Zustand: gepflegt
  • Alter: Neubau
  • Bauweise: Massiv
  • Ausbaustufe: schlüsselfertig mit Keller
  • Erschließung: vollerschlossen

Ausstattung

  • Heizungsart: Fußbodenheizung
  • Befeuerung: Pellets
  • Bodenbelag: Fliesen, Stein, Parkett
  • Badausstattung: Dusche, Badewanne, Fenster im Badezimmer
  • Abstellraum
  • Gartennutzung
  • Gäste-WC
  • Kamin
  • Räume veränderbar
  • Swimmingpool
  • teilmöbliert
  • Wasch-/Trockenraum
  • Wellnessbereich

Lage

Scheffau am Wilden Kaiser liegt eingebettet zwischen dem imposanten Kaisergebirge und den sanften Hängen des Brixentals. Das Dorf ist bekannt für seine Ursprünglichkeit und den direkten Zugang zur SkiWelt Wilder Kaiser–Brixental. Im Winter reicht es, die Skier vor der Haustür anzuschnallen, im Sommer eröffnet sich ein Netz an Wanderwegen, der Hintersteiner See und ein breites Freizeitangebot.

Trotz der ruhigen Umgebung ist die Lage hervorragend angebunden: Kitzbühel erreicht man in rund 20 Minuten, Innsbruck und Salzburg in weniger als einer Stunde. Wer hier lebt, genießt die Kombination aus alpiner Ruhe, sportlicher Vielfalt und guter Erreichbarkeit.

Immobilie

Alpine Exklusivität im toskanischen Stil – Wohnen am Wilden Kaiser

Dieses außergewöhnliche Anwesen in Scheffau vereint auf eindrucksvolle Weise die alpine Kraft der Tiroler Berge mit der eleganten Leichtigkeit italienischer Architektur. Auf rund 1.000 qm Grund und einer Wohnfläche von ca. 350 qm wurde 2005 ein Haus geschaffen, das sich durch höchste Bauqualität, feinste Materialwahl und eine zeitlos mediterrane Formensprache auszeichnet.

Architektur & Wohngefühl

Die klare Linienführung im toskanischen Stil, kombiniert mit Naturstein, Holz und lichtdurchfluteten Übereck-Fenstern, schafft ein Ambiente, das gleichermaßen repräsentativ wie wohnlich wirkt. Ein überdachter Außensitz lädt dazu ein, die immer wärmer werdenden Alpen-Sommer stilvoll geschützt zu genießen. Im Winter öffnet sich der Blick auf die verschneiten Hänge, während im Sommer das satte Grün der Natur den Rahmen für Ruhe und Entspannung bildet.

Wellness & Genuss

Besonders hervorzuheben ist der im Keller speziell angelegte Wellnessbereich, der als italienische Grotte nachempfunden wurde. Hier verbinden sich Steinarchitektur und stimmungsvolle Beleuchtung zu einem einzigartigen Rückzugsort. Ein Dampfbad ist bereits vorbereitet und kann mit wenig Aufwand ergänzt werden. Ergänzt wird der Bereich durch einen Weinkeller für edle Jahrgänge – ein idealer Ort, um alpine Lebensart mit mediterranem Dolce Vita zu vereinen.

Ski-In/Ski-Out & Lage

Die Nähe zur Skipiste – mit Ski-in/Ski-out direkt vor der Tür – verleiht diesem Haus eine seltene Exklusivität. Nur wenige Schritte vom Scheffauer Skilift entfernt, öffnet sich im Winter eine der größten Skiregionen Österreichs, während im Sommer Wanderwege und Golfplätze locken. Durch die neue Unterführung der Landesstraße wurde die Wohnsiedlung zusätzlich deutlich aufgewertet: Ruhe, Sicherheit und Lebensqualität profitieren gleichermaßen.

Ausstattung & Qualität

Das Haus bietet eine Wohnfläche von ca. 347 qm, ergänzt durch großzügige Terrassen, eine Doppelgarage, Abstellflächen sowie hochwertig ausgeführte Innenräume. Bodentiefe Fenster, edle Stein- und Parkettböden, Fußbodenheizung, Kamin sowie ein beheizter Außenpool mit Wellnessanschluss garantieren ein Wohngefühl auf höchstem Niveau. Jeder Raum ist durchdacht gestaltet und mit Materialien von erlesenster Qualität ausgestattet.

Fazit:

Dieses Haus ist weit mehr als eine Immobilie – es ist eine Symbiose aus Tiroler Naturverbundenheit, italienischer Eleganz und kompromissloser Bauqualität. Ein einzigartiges Refugium für Menschen, die Wert auf Exklusivität, alpine Erlebnisse und mediterranes Lebensgefühl legen.

 

Noch nichts gefunden? Wir informieren Sie über geeignete Immobilienangebote noch vor allen anderen.
Legen Sie jetzt Ihren individuellen Suchagenten unter folgendem Link an. Wir schicken Ihnen passende Immobilien exklusiv vorab zu.
Suchagent anlegen - https://zefi-immobilien.service.immo/registrieren/de

Wir weisen darauf hin, dass zwischen dem Vermittler und dem zu vermittelnden Dritten ein familiäres oder wirtschaftliches Naheverhältnis besteht.

Der Vermittler ist als Doppelmakler tätig.


Infrastruktur / Entfernungen

Gesundheit
Arzt <1.500m
Apotheke <4.500m
Krankenhaus <10.000m

Kinder & Schulen
Schule <1.000m
Kindergarten <1.000m
Höhere Schule <5.000m
Universität <9.500m

Nahversorgung
Supermarkt <1.000m
Bäckerei <500m
Einkaufszentrum <9.500m

Sonstige
Bank <1.000m
Geldautomat <1.000m
Polizei <5.000m
Post <1.000m

Verkehr
Bus <500m
Bahnhof <8.000m
Autobahnanschluss <10.000m

Angaben Entfernung Luftlinie / Quelle: OpenStreetMap

Sonstiges

  • Immobilie ist verfügbar ab: nach Vereinbarung
  • als Ferienimmobilie nutzbar: ja

Rechtliches

  • Kaufpreis: 2.990.000 €
  • Kaufpreis pro m²: 8.603,57 €
  • Käuferprovision: 3% des Kaufpreises zzgl. 20% USt.

Dein Ansprechpartner bei uns

Klaudio Zefi

Geschäftsführung
Sicher!  

Energieeffizenz

  • HWB-Wert: 69 kWh/(m²*a)
  • HWB-Klasse: C
  • fGEE-Wert: 0,88
  • fGEE-Klasse: B
  • Energieausweis-Art: Bedarf
  • Primärenergieträger: Pellets

Energieskala

A++
A+
A
B
C
69,00 kWh/(m²·a)
D
E
F
G

Sie haben noch Fragen?

crossmenuchevron-downCookie Consent mit Real Cookie Banner linkedin facebook pinterest youtube rss twitter instagram facebook-blank rss-blank linkedin-blank pinterest youtube twitter instagram